Пластиковые окна Rehau Geneo — это немецкий оконный премиум класс.
Генео — занимает седьмое( максимальное) место по тепловым характеристикам в линейке оконных профилей Рехау, значительно превышая все российские требования и госты.
Окна REHAU GENEO обладают высокой звукоизоляцией( R=46 дБ), что позволяет наслаждаться тишиной находясь в квартирах, расположенных вблизи автодорог. Такие характеристики окнам придает 6 камер, ситемная глубина( 86 мм) и толщина стеклопакета 53 мм, а возможность установки термомодуля и использование шумопоглощающих стеклопакетов( используются стекла триплекс и воздушные камеры разной ширины) позволяют дополнительно улучшить и так высокие звукоизоляционные характеристики окон GENEO.
Очень высоких тепловых характеристик удалось добиться благодаря использованию в основе профиля Rehau Geneo инновационной технологии RAU-FIPRO, активно применяемой в авиастроении. Благодаря ей удалось добиться высоких характеристик прочности и жесткости без использования армирования, что дало возможность снизить вес и обеспечить показатель приведенного сопротивления теплопередаче пакета профилей не менее 1,05 м2*Со/Вт готового окна. Для сохранения внешнего привычного вида при экструдировании применяется технология RAU-ПВХ.
Применением инновационного материала RAU-FIPRO с толщиной наружных стенок 3 мм, продуманной геометрии профиля, 6 камерам и 86 миллиметровой толщиной удалось добиться необходимой жесткости и отказаться от использования стального армирования при производстве большинства стандартных конструкций, при этом обеспечив высочайшие стандарты теплосбережения и снижение веса оконных заготовок до 30%.
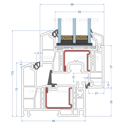
На рисунке справа представлена схема соединения коробки 72 и створки Z57 в оконном блоке из профиля REHAU GENEO. GENEO – новая профильная система премиум класса, имеющая ряд преимуществ перед выведенным с рынка профилем REHAU SIБ.
Профили REHAU GENEO улучшили ряд характеристик выпускаемых ранее профилей SIБ и BRILLANT. Системная глубина 86 мм вместо 70 мм, 6 воздушных камер вместо трех у SIБ и пяти у BRILLANT, дополнительный, центральный конткр уплотнения. Сохранился внутренний наплав створки на раму (8 мм), а наружний наплав сделали 5 мм, что не отразилось на теплосбережении благодаря дополнительному контуру уплотнения.
В чем преимущества GENEO перед остальными профилями? Более высокая коровка (72 мм) делает конструкцию более жесткой. Створка, наоборот, уменьшилась в размере, но за счет дополнительных камер тепловые характеристики не понизились. Системная глубина 86 мм вместо 70 позволяет устанавливать стеклопакеты толщиной до 53 мм. Еще одним новшеством GENEO стала возможность замены стального армирования на фиброармирование.
Благодаря всем этим нововведениям удалось немного улучшить показатели теплосбережения (0,57 м2*Со/Вт вместо 0,55 у REHAU DELIGHT), при этом значительно увеличив массу створки, а соответственно и нагрузку на фурнитуру.
Пластиковые окна Rehau Geneo — это немецкий оконный премиум класс.
Генео — занимает седьмое( максимальное) место по тепловым характеристикам в линейке оконных профилей Рехау, значительно превышая все российские требования и госты.
| Профиль | 2-х кам с/п с обычным стеклом R=0,55 м2•°С/Вт |
2-х кам с/п с одним энергосберегающим стеклом R=0,75 м2•°С/Вт |
2-х кам с/п с одним энергосберегающим и одним мультифункциональным стеклом и аргоном R=1,24 м2•°С/Вт |
|||
| R0 пр, м²°С/Вт | Теплопотери, Вт | R0 пр, м²°С/Вт | Теплопотери, Вт | R0 пр, м²°С/Вт | Теплопотери, Вт | |
| Blitz, 60/3, 0,70 м²°С/Вт |
0,51 | 86 | 0,61 | 72 | 0,81 | 57 |
| THERMO-Design, 60/4 0,78 м²°С /Вт |
0,52 | 85 | 0,62 | 71 | 0,83 | 56 |
| GRAZIO, 70/5, 0,85 м²°С /Вт |
0,53 | 83 | 0,63 | 70 | 0,84 | 55 |
| BRILLANT-Design, 70/5 0,90 м²°С/Вт |
0,54 | 82 | 0,64 | 69 | 0,85 | 54 |
| DELIGHT-Design, 70/5, 0,94 м²°С /Вт |
0,55 | 81 | 0,65 | 68 | 0,86 | 53 |
| INTELIO 80, 80/6 0,98 м²°С /Вт |
0,56 | 80 | 0,66 | 67 | 0,87 | 52 |
| GENEO, 86/6, 1,05 м²°С /Вт |
0,57 | 79 | 0,67 | 66 | 0,88 | 51 |
| Теплопотери для стен первого этажа: Стена в 3 кирпича (79 см) – 85Вт/м² Стена из бруса 20см – 58Вт/м² | ||||||

Рекордная прочность и высокое сопротивление к ветровым нагрузкам. Значительное повышение теплотехнических характеристик - эквивалентно кирпичной стене толщиной 1,3 м. Звукоизоляция на уровне класса 5.
Инновации, применяемые в окнах Генео, дали возможность отказаться от использования армирования для большинства стандартных размеров, что позволило в освободившуюся воздушную камеру, предназначенную для установки армирования, устанавливать термомодуль, который дополнительно улучшает и без того высокие тепловые характеристики
Створки Rehau Geneo z 57 согласно диаграмме, представленной выше, можно изготавливать шириной до 140 и высотой до 140 см без использования армирования, но масса при этом не должна превышать 40 кг. Возьмем для расчетов створку размером 130 на 60 см. Вес створки z 57 составляет 4,3 кг/м, т.е. 4,3*(1,3*2+0,6*2)=16 кг без учета стеклопакета. А вес двухкамерного стеклопакета 0,6*1,3*30=24 кг. Итого 40 кг. Т.е. это максимально допустимый для створок Rehau Geneo, укомплетованных двухкамерными стеклопакетами( комплектовать окна генео одинарными стеклопакетами бессмысленно), размер без использования армирования составляет 130*60 см.
Пластиковые окна, изготовленные из профилей rehau geneo, преимущественно комплектуются коробками 72( армирование 35*28) и 86 коробками( армирование 35*42). Эти коробки комбинируются со створками z 49 (армирование 35*20) и z 57 ( армирование 35*28).
Профильная система Geneo адаптирована под установку штапиков всех типов размеров( 6,5 и 14,5 мм) и видов экструдируемых концерном.




![]() |
![]() |
Одним из важнейших элементов окна является фурнитура. Она обеспечивает открывание и откидывание створок, а взакрытом положении плотно прижимает створку к раме. При производстве пластиковых окон Rehau Geneo можно использовать фурнитуру любого бренда( Roto, Maco, Sigenia, Vorne). Обязательным является только тип. Для всех профилей Rehau используется фурнитура типа 12/20-13. 12- это фальцлюфт, т.е расстояние от фальца коробки до фальца створки. 20- это ширина наплава створки, т.е. расстояние от торца наплава до фальца створки. 13- это ось фурнитурного паза, т.е. расстояние между фальцем рамы и осью фурнитурного паза. Стандартный набор фурнитуры представлен на рисунке. Открывание и закрывание обеспечивает основной запор, средние запоры дают дополнительный прижим по всему периметру. Ножницы обеспечивают откидывание створки. Благодаря угловым переключателям вся обвязка работает как единое целое и для управления всей этой ситемой достаточно одной ручки оконной белой.
Помимо стандартной комплектации существует возможность подключения дополнительных опций: многоступенчатое проветривание, защита от детей и т.д.
Проверить номер артикула в маркировке на профиле.
Артикулы REHAU начинаются с «15» и состоят
из 7 цифр. Артикулы профильных систем, выпускаемые до 2015 года, начинались
с «5» и состояли из 6 цифр.
В пазе штапика
В фальце остекления
В фазе уплотнения